Dom D21-2B

Powierzchnia użytkowa

84,4 m2

Minimalne wymiary działki

18,92m x

26,02m

Format domu

7,92m x

16,02m

2 łazienki

2 sypialnie

Powierzchnia zabudowy

117,69 m2

Zalety naszych domów

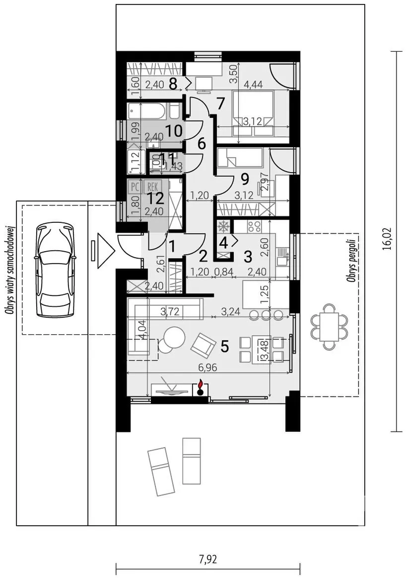
Parter

Powierzchnia (m²)

89,27 m²

1. Wiatrołap – 4,19 m²
2. Hall – 3,07 m²
3. Kuchnia – 8,67 m²
4. Spiżarnia – 0,94 m²
5. Pokój dzienny + jadalnia – 28,26 m²
6. Korytarz – 5,75 m²
7. Pokój – 13,7 m²
8. Garderoba – 3,74 m²
9. Pokój – 9,12 m²
10. Łazienka – 5,59 m²
11. WC – 1,37 m²
12. Pomieszczenie gospodarcze – 4,87 m²

Powierzchnie i wymiary

Parametry domu

Powierzchnia użytkowa

84,4 m2

Powierzchnia zabudowy

117,69 m2

Powierzchnia całkowita

117,69 m2

Kąt nachylenia dachu

35°

Parametry działki

Minimalne wymiary działki

18,92 x

26,02 m

Wymiary elewacji

7,92 x

16,02 m

Opis projektu

Coś więcej niż tylko domy..

Specyfikacje w zależności od stanu zaawansowania budowy

Zobacz, co zawiera stan surowy zamknięty, deweloperski podstawowy i deweloperski premium.

Wyszczególnienie elementów domu

STAN SUROWY ZAMKNIĘTY

277 642 zł

netto

Stan deweloperski

480 700 zł

netto

Stan deweloperski Premium

525 700 zł

netto

Fundament

  • Płyta fundamentowa wzmocniona i ocieplona poziomo i pionowo
  • Instalacja wodno-kanalizacyjna wykonana pod posadzką i doprowadzona do punktów zasilania w wodę i kanalizację
  • Izolacja płyty pionowa i pozioma po obwodzie – styropianem Hydrostyr 10cm + izolacja przeciwwilgociowa pod całą płytą
  • Podłoga wykonana z betonu wzmocniona zbrojeniem rozproszonym, zatarta na gładko

STAN SUROWY ZAMKNIĘTY

Stan deweloperski

Stan deweloperski premium

Konstrukcja premium

  • Konstrukcja ścian zewnętrznych systemie KD Wall – MgO + PIR + MgO + blacha na rąbek lub tynk (w zależności od projektu)
  • Konstrukcja dachu w systemie KD Roof – MgO + PIR + MgO + blacha na rąbek/blachodachówka (w zależności od projektu)
  • Wykonanie stropu z płyt MFP + PIR + MFP
  • Wykończenie sufitu płytą gipsowo-kartonową (GK)

Płyty MgO:

STAN SUROWY ZAMKNIĘTY

Stan deweloperski

Stan deweloperski premium

Elewacja zewnętrzna – tynk akrylowy

  • Solidny montaż, styropian, zaciągnięty klejem z zatopioną siatką / struktura akrylowa (kolory i rodzaje do wyboru)
  • Elewacja zewnętrzna – blacha elewacyjna/deska elewacyjna
  • Solidny montaż, membrana izolacyjna, blacha elewacyjna / deska elewacyjna (kolory i rodzaje do wyboru)
  • Obsadzenie parapetów zewnętrznych w kolorze odpowiadającym (kolory do wyboru)

STAN SUROWY ZAMKNIĘTY

Stan deweloperski

Stan deweloperski premium

Izolacja akustyczna i termiczna w płycie MgO

  • Izolacja ścian zewnętrznych pianą PIR 15 cm + płyty MgO
  • Izolacja stropu pianą PIR 17-24 cm + płyty MgO (w zależności od przeliczeń konstrukcyjnych i wybranego projektu)
  • Izolacja ścian wewnętrznych 15 cm pianą PIR + płyty MFP

STAN SUROWY ZAMKNIĘTY

Stan deweloperski

Stan deweloperski premium

Okna i drzwi

  • Okna posadowione na „ciepłym parapecie” – profil XPS Styrodur
  • Wszystkie okna 3-szybowe o wysokiej klasie energetycznej
  • Okna tarasowe 3-szybowe
  • Kolor ram okiennych w wybranym kolorze
  • Drzwi wejściowe (kolor i wzor do wyboru)

STAN SUROWY ZAMKNIĘTY

Stan deweloperski

Stan deweloperski premium

Dach i rynny

  • Dach dwuspadowy o kącie nachylenia od 30 do 45 stopni (w zależności od projektu)
  • Wykonanie poszycia dachu z blachą na rąbek lub blachodachówką w technologii KD Roof
  • Orynnowanie wysokiej jakości PCV kolor do wyboru z dostępnej palety kolorów
  • Opierzenie dachu

STAN SUROWY ZAMKNIĘTY

Stan deweloperski

Stan deweloperski premium

Ściany wewnętrzne

  • Ściany działowe w systemie KD Wall – ognioodporne i wodoodporne płyty MgO + PIR + MgO
  • Izolacja akustyczna ścian działowych pianą PIR oraz płytą MFP
  • Obłożenie wszystkich ścian od wewnątrz 2x płytami gipsowo-kartonowymi, w łazience wodno-odpornymi z zastosowaniem folii w plynie, bez szpachlowania spoin

STAN SUROWY ZAMKNIĘTY

Stan deweloperski

Stan deweloperski premium

Ogrzewanie i CWU

  • Ogrzewanie podłogowe elektryczne z zastosowaniem mat grzewczych w łazienkach i kuchni lub ogrzewanie podłogowe z systemem grzewczym w domach o większej powierzchni (w zależności od projektu)
  • Zbiornik do ciepłej wody użytkowej o pojemności dostosowanej do klienta 100-300L z funkcją Wi-Fi
  • Aplikacja do zdalnego sterowania podgrzewaczem
  • Inteligentny wyświetlacz

STAN SUROWY ZAMKNIĘTY

Stan deweloperski

Stan deweloperski premium

Pompa ciepła powietrze - powietrze - klimatyzacja

  • Jednostka lub jednostki ścienne montowane w salonie oraz na piętrze
  • Wbudowany moduł Wi-Fi umożliwiając sterowanie z urządzeń mobilnych
  • Niskie zużycie energii, klasa energetyczna A++

STAN SUROWY ZAMKNIĘTY

Stan deweloperski

Stan deweloperski premium

Instalacja wodno-kanalizacyjna

  • Instalacja wykonana według projektu wykonawczego
  • Uzbrojenie rozdzielacza ciepłej i zimnej wody użytkowej
  • Doprowadzenie na odpowiednią wysokość kształtek kanalizacyjnych niezbędnych do dalszych prac wykończeniowych i białego montażu

STAN SUROWY ZAMKNIĘTY

Stan deweloperski

Stan deweloperski premium

Instalacja elektryczna

  • Punkty oświetleniowe i gniazda elektryczne wykonane zgodnie z projektem wykonawczym
  • Kompletna rozdzielnia oraz jej spięcie

STAN SUROWY ZAMKNIĘTY

Stan deweloperski

Stan deweloperski premium

Centrala rekuperacyjna

  • Instalacja wykonana według projektu wykonawczego, rozprowadzona do punktów nawiewu świeżego powietrza oraz poboru zużytego powietrza
  • Zakończenie wszystkich punktów nawiewu i czerpania powietrza anemostatami

STAN SUROWY ZAMKNIĘTY

Stan deweloperski

Stan deweloperski premium

Fotowoltaika

  • Instalacja PV o mocy 6 kW z falownikiem hybrydowym  

STAN SUROWY ZAMKNIĘTY

Stan deweloperski

Opcjonalnie

Stan deweloperski premium

Magazyn energii

  • Magazyn energii o pojemności 10,24 kWh z inteligentnym zarządzaniem energią BMS

STAN SUROWY ZAMKNIĘTY

Stan deweloperski

Opcjonalnie

Stan deweloperski premium

Pompa ciepła powietrze – woda o podwyższonej klasie efektywności energetycznej

  • Pompa ciepła (składająca się z jednostki wewnętrznej i zewnętrznej) dostosowana do zapotrzebowania
  • Zbiornik kombinowany 2 w 1 składający się z bufora o pojemności 100L oraz zasobnika C.W.U. 250 lub 310 L dostosowany do zapotrzebowania danej rodziny

STAN SUROWY ZAMKNIĘTY

Stan deweloperski

Opcjonalnie

Stan deweloperski premium

Opcjonalnie

Cena domu w wybranym poziomie wykonania

Stan surowy zamknięty

277 642 zł

netto

Stan deweloperski

480 700 zł

netto

Stan deweloperski Premium

525 700 zł

netto

Podane ceny są cenami netto. Do powyższych kwot należy doliczyć podatek VAT w wysokości:

8% – w przypadku zamówień realizowanych dla klientów indywidualnych (osoby fizyczne, cele mieszkaniowe),

23% – w przypadku zamówień dla klientów biznesowych (firmy, instytucje).

Etapy budowy powiązane z transzami

ETAP 1

Podpisanie umowy i start projektu

– organizacja i przygotowanie dokumentacji do budowy,
– ⁠badanie geologiczne gruntu
– ⁠zakup i dostosowanie (adaptacja) projektu do działki

I TRANSZA - 10%

W ciągu 7 dni od podpisania umowy.

ETAP 2

Finalny kosztorys i produkcja komponentów

– rozpoczęcie produkcji budynku
– ⁠rozpoczęcie produkcji okien i drzwi
– ⁠budowa płyty fundamentowej
– ⁠akceptacja drogi do transportu

II TRANSZA - 50%

Po zaksięgowaniu środków na koncie zgodnie z harmonogramem płatności

ETAP 3

Dostawa konstrukcji i materiałów na budowę

– dostawa konstrukcji i materiałów na budowę
– logistyka i dostarczenie na plac budowy konstrukcji oraz materiałów potrzebnych do rozpoczęcia budowy domu.
– dostarczenie okien i drzwi na plac budowy

III TRANSZA - 30%

Po dostarczeniu na plac budowy, najlepiej w dniu dostarczenia – przed rozpoczęciem prac budowlanych

ETAP 4

Postawienie szkieletu i zamknięcie bryły domu.

– wykonanie zakresu robót zgodnie z umową
– postawienie szkieletu i zamknięcie bryły domu
– stolarka okienna i drzwi

IV TRANSZA - 10%

Przed wykonaniem prac wykończeniowych.

Prezentowane etapy i transze mają charakter orientacyjny i mogą ulec zmianie w szczególności w przypadku zmiany zakresu prac, technologii, warunków gruntowych, dostępności materiałów / terminów dostaw, uzgodnień z organami decyzji projektowych lub innych okoliczności wpływających na ich realizację. Wiążące są wyłącznie postanowienia umowy.

Współpracujemy z większością banków

Galeria zdjęć

Masz pytania?
Skontaktuj się z nami

Nie musisz wiedzieć wszystkiego – od tego jesteśmy!

Napisz do nas, a rozwiejemy Twoje wątpliwości i podpowiemy, co się najlepiej sprawdzi.

507 507 834

biuro@kdsolidea.pl

kdsolidea.pl